
本项目新建建筑面积约900平方米,改造建筑面积约800平方米。设计施工总费用包含建筑主体,室内外装修及场地景观总造价258万元,风格室内,建筑及景观统一设计为宋式美学风格,为我公司开年第一个别墅项目。
一.全包报价:平场拆除1.14万,主体包含挡墙以及已建钢结构屋面84.93万,围护工程22.57,室外装饰工程39.10万,景观工程27.93万,室外安装工程包化粪池,生活水池等5.72万,室内装饰工程不含衣柜可移动家具软装63.18万。总计248.19万。
二、人工报价:平场拆除1.14万,主体包含挡墙以及已建钢结构屋面42.46万,围护工程11.28,室外装饰工程11.47万,景观工程17.34万,室外安装工程包化粪池,生活水池等5.21万,室内装饰工程不含衣柜可移动家具软装26.21万,小计118.25万。项目管理及安全保险费按照总价10%计算11.825万。材料二次搬运费5万,设计费按照5折计算3.9万,总计138.96万。
三、设计费:
|
陈总乡村别墅工程设计报价表(新建) |
|||||
|
分部名称 |
分项目名称 |
单位 |
面积 |
单价(元) |
小计(元) |
|
建筑 |
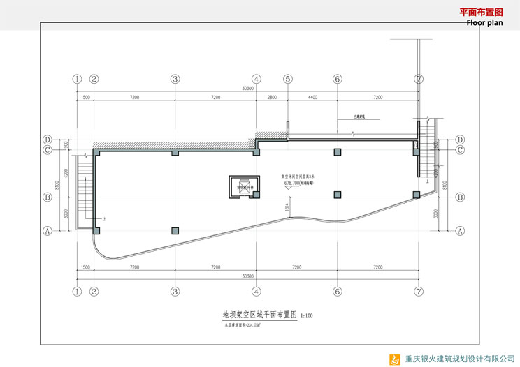
吊二层基础 |
㎡ |
243.35 |
39.00 |
9490.65 |
|
吊一层 |
㎡ |
243.35 |
39.00 |
9490.65 |
|
|
一层 |
㎡ |
176.15 |
39.00 |
6869.85 |
|
|
二层 |
㎡ |
177.34 |
39.00 |
6916.26 |
|
|
三层 |
㎡ |
194.18 |
39.00 |
7573.02 |
|
|
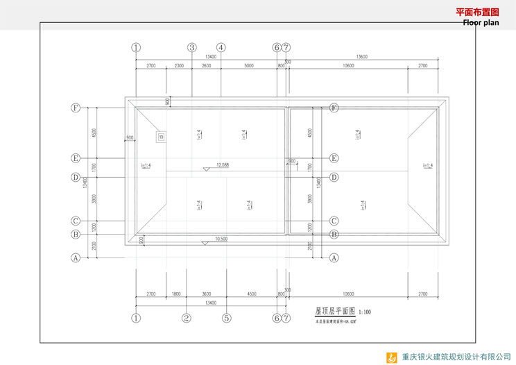
已建建筑坡屋面及门头 |
㎡ |
229.51 |
39.00 |
8950.89 |
|
|
景观 |
场地中用地减去建筑基底面积 |
㎡ |
658.36 |
20.00 |
13167.20 |
|
室内装饰 |
一层 |
㎡ |
147.10 |
36.00 |
5295.60 |
|
二层 |
㎡ |
147.10 |
36.00 |
5295.60 |
|
|
三层 |
㎡ |
147.10 |
36.00 |
5295.60 |
|
|
合计 |
|
|
|
|
78345.32 |
备注:1.设计内容包含,建筑、结构、给排水、建筑电气、景观及室内装饰施工图,不含厂家二次深化设计。
2.全包设计费全免,只包清工设计费打5折,只做设计不打折。
3.设计费包含5次免费现场技术咨询,5次以外每次按1000元/人现场技术咨询及差旅费用。
我公司承接别墅项目设计施工,先签订设计合同满意再签订施工合同。 
1:500地形图















